Frederik Hendrikstraat 86 – Sneek
Kenmerken
Status
Vraagprijs
Oplevering
Energielabel
Bouwjaar
Inhoud
Woonoppervlakte
Aantal slaapkamers
Perceeloppervlakte
Buitenruimte
Ligging tuin
Garage
Omschrijving
Erg leuke jaren ’30 tussenwoning met achterom.
In een rustige en kindvriendelijke straat, op korte afstand van het centrum, staat deze charmante jaren ’30-tussenwoning aan de Frederik Hendrikstraat 86. De woning ademt karakter, maar biedt tegelijkertijd het comfort van nu dankzij de kunststof kozijnen met HR++ beglazing door de gehele woning. Een ideale combinatie van sfeer, duurzaamheid en gebruiksgemak!
In de diepe, zonnige achtertuin (zuidoosten) bevindt zich een vrijstaande berging (ca. 2,9 x 2,9 m) met overkapping, voorzien van elektra en een betonvloer. Ideaal voor het stallen van fietsen of het opbergen van (tuin)gereedschap. De woning beschikt over zowel een voortuin als een achtertuin met achterom. De achtertuin biedt veel privacy, is onderhoudsvriendelijk ingericht en vormt een heerlijke plek om in de zomer te genieten van het buitenleven.
Indeling:
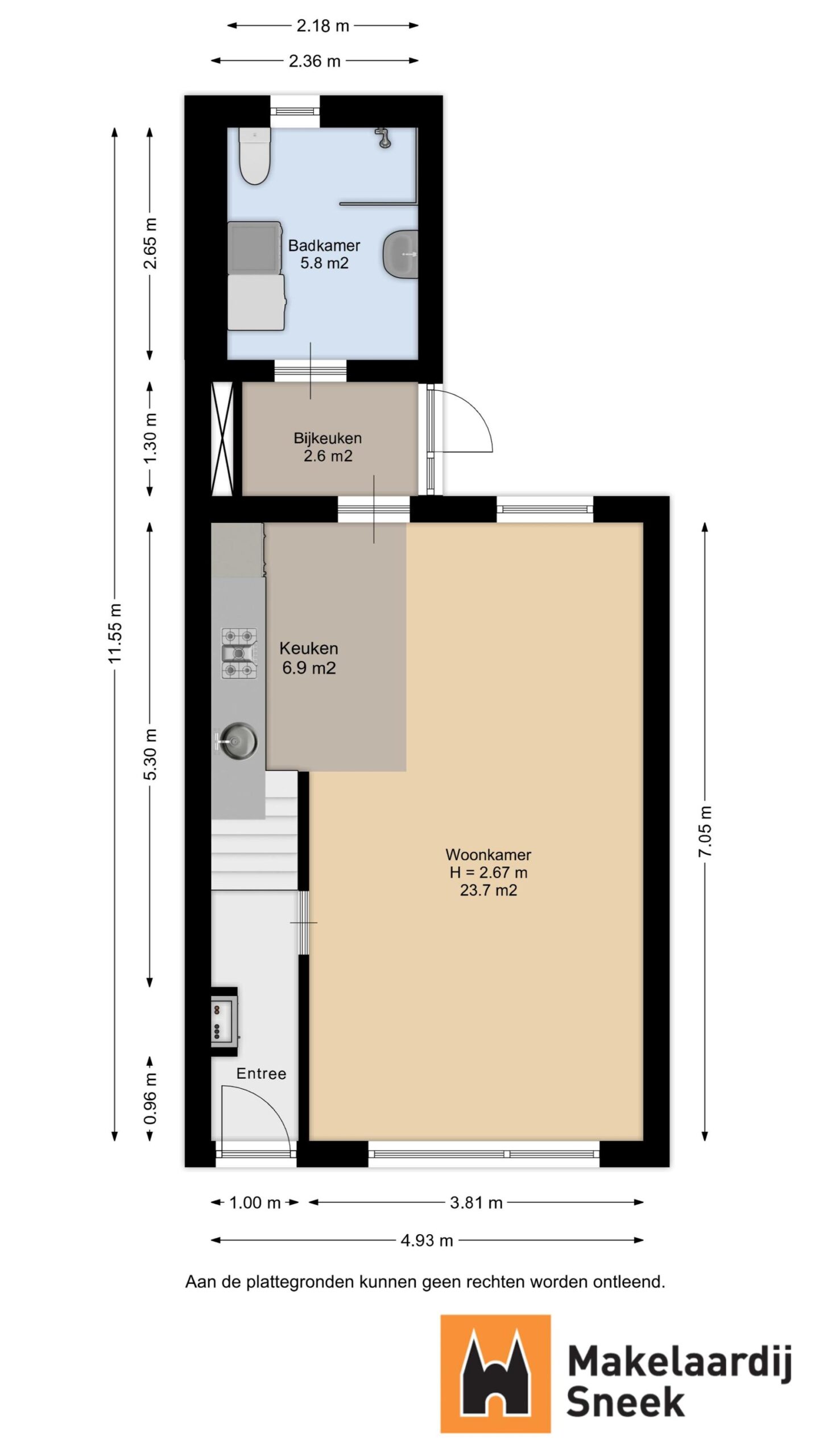
Begane grond: hal/entree met trapopgang, lichte en gezellige woonkamer (ca. 24 m²) met grote raampartijen die zorgen voor veel natuurlijk licht en een prettige woonbeleving. De open keuken (ca. 7 m²) met inbouwapparatuur bevindt zich aan de achterzijde en is praktisch ingericht met voldoende werk- en kastruimte. Aangrenzend de bijkeuken (ca. 2,6 m²) met toegang tot de tuin. De badkamer is op de begane grond gesitueerd en voorzien van een douche, wastafel, toilet en aansluiting voor de wasmachine.
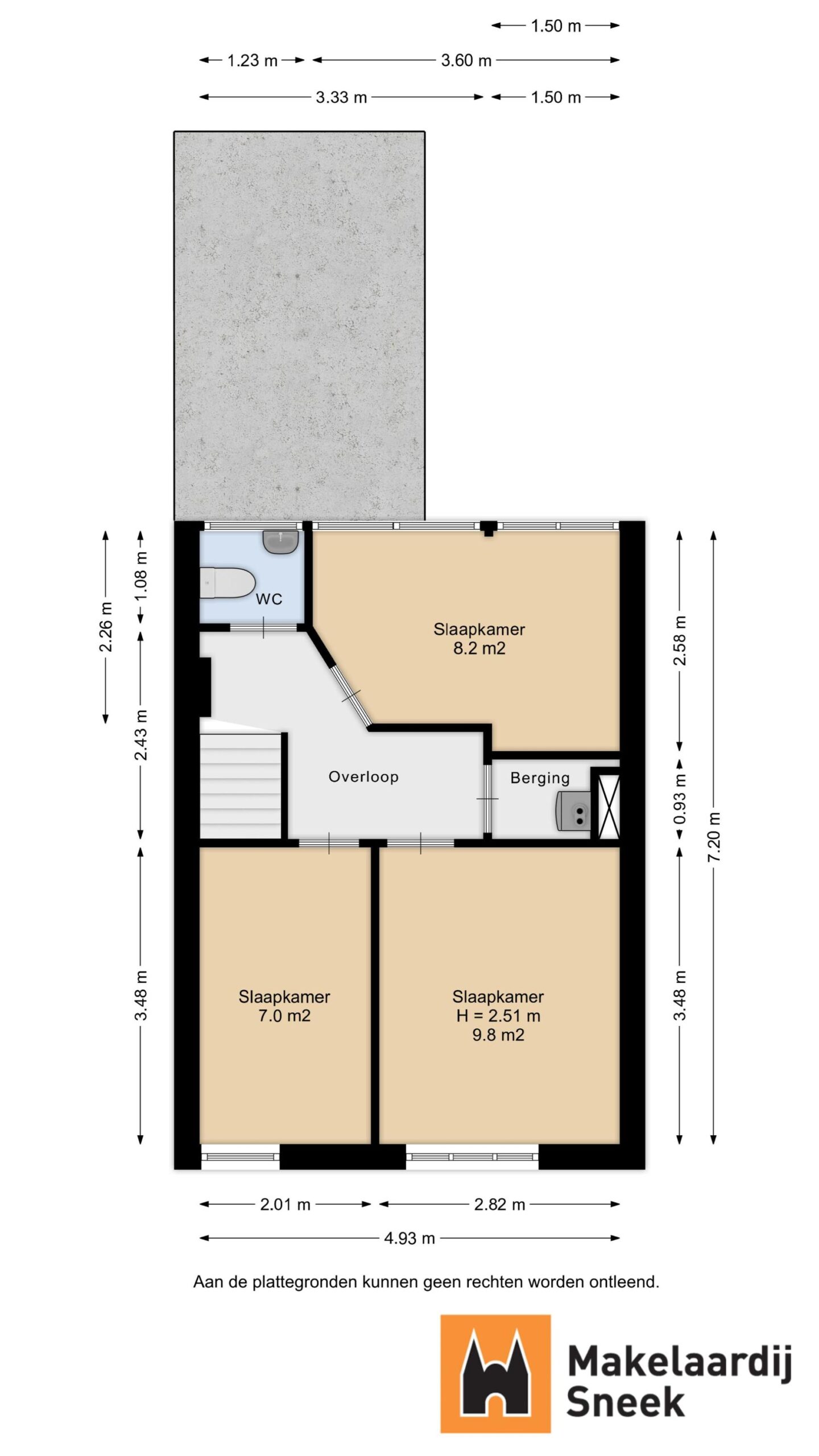
1e verdieping: overloop, 3 slaapkamers van ca. 10 m², 8 m² en 7 m². Alle kamers zijn voorzien van kunststof kozijnen met HR++-glas, wat zorgt voor goede isolatie en minimaal onderhoud. De overloop geeft tevens toegang tot een sep
Erg leuke jaren ’30 tussenwoning met achterom.
In een rustige en kindvriendelijke straat, op korte afstand van het centrum, staat deze charmante jaren ’30-tussenwoning aan de Frederik Hendrikstraat 86. De woning ademt karakter, maar biedt tegelijkertijd het comfort van nu dankzij de kunststof kozijnen met HR++ beglazing door de gehele
Erg leuke jaren ’30 tussenwoning met achterom.
In een rustige en kindvriendelijke straat, op korte afstand van het centrum, staat deze charmante jaren ’30-tussenwoning aan de Frederik Hendrikstraat 86. De woning ademt karakter, maar biedt tegelijkertijd het comfort van nu dankzij de kunststof kozijnen met HR++ beglazing door de gehele woning. Een ideale combinatie van sfeer, duurzaamheid en gebruiksgemak!
In de diepe, zonnige achtertuin (zuidoosten) bevindt zich een vrijstaande berging (ca. 2,9 x 2,9 m) met overkapping, voorzien van elektra en een betonvloer. Ideaal voor het stallen van fietsen of het opbergen van (tuin)gereedschap. De woning beschikt over zowel een voortuin als een achtertuin met achterom. De achtertuin biedt veel privacy, is onderhoudsvriendelijk ingericht en vormt een heerlijke plek om in de zomer te genieten van het buitenleven.
Indeling:
Begane grond: hal/entree met trapopgang, lichte en gezellige woonkamer (ca. 24 m²) met grote raampartijen die zorgen voor veel natuurlijk licht en een prettige woonbeleving. De open keuken (ca. 7 m²) met inbouwapparatuur bevindt zich aan de achterzijde en is praktisch ingericht met voldoende werk- en kastruimte. Aangrenzend de bijkeuken (ca. 2,6 m²) met toegang tot de tuin. De badkamer is op de begane grond gesitueerd en voorzien van een douche, wastafel, toilet en aansluiting voor de wasmachine.
1e verdieping: overloop, 3 slaapkamers van ca. 10 m², 8 m² en 7 m². Alle kamers zijn voorzien van kunststof kozijnen met HR++-glas, wat zorgt voor goede isolatie en minimaal onderhoud. De overloop geeft tevens toegang tot een separaat toilet en een praktische berging met cv-opstelling.
Bijzonderheden:
* Bouwjaar: jaren ’30 – sfeervolle architectuur en karakteristieke geveldetails.
* Voorgevel opnieuw gevoegd en geïmpregneerd in 2022.
* Voorzien van kunststof kozijnen met HR++ beglazing door de gehele woning.
* De kruipruimte is geïsoleerd (bodemisolatie).
* Woonoppervlak 79 m².
* Perceelgrootte 127 m².
* Energielabel D.
* De cv-ketel betreft een huurtoestel.
* Vrijstaande berging met overkapping.
* Onderhoudsarme tuin met achterom.
* Gelegen in een rustige, kindvriendelijke wijk nabij winkels, scholen en het centrum.
Interesse?
Heb je interesse in deze woning of wil je een bezichtiging inplannen? Anne, Theo, Eveline, Wendel en Jinke helpen je graag."*" geeft vereiste velden aan
Video
Plattegrond













