Arkumerhemstraat 13 – Sneek
Kenmerken
Status
Vraagprijs
Oplevering
Energielabel
Bouwjaar
Inhoud
Woonoppervlakte
Aantal slaapkamers
Perceeloppervlakte
Buitenruimte
Ligging tuin
Garage
Omschrijving
Uitstekend onderhouden tussenwoning met achterom, energielabel A en maar liefst 134 m² woonoppervlak.
Aan een rustige straat in een prettige woonomgeving staat deze verrassend ruime en uitstekend onderhouden tussenwoning met achterom, aangebouwde bijkeuken en vrijstaande berging. De woning is door de jaren heen met zorg gemoderniseerd én verduurzaamd en beschikt over energielabel A.
Met een woonoppervlak van ca. 134 m² biedt deze woning volop ruimte voor het hele gezin.
Ook de voor- en achtertuin zijn netjes aangelegd. De achtertuin beschikt over een achterom en een vrijstaande berging van ca. 7 m². Een fijne, onderhoudsvriendelijke buitenruimte met voldoende privacy.
Kortom, een instapklare, uitgebouwde tussenwoning met vier slaapkamers, moderne voorzieningen en een uitstekende mate van duurzaamheid. Een ideale gezinswoning waar ruimte, comfort en energiezuinig wonen perfect samenkomen.
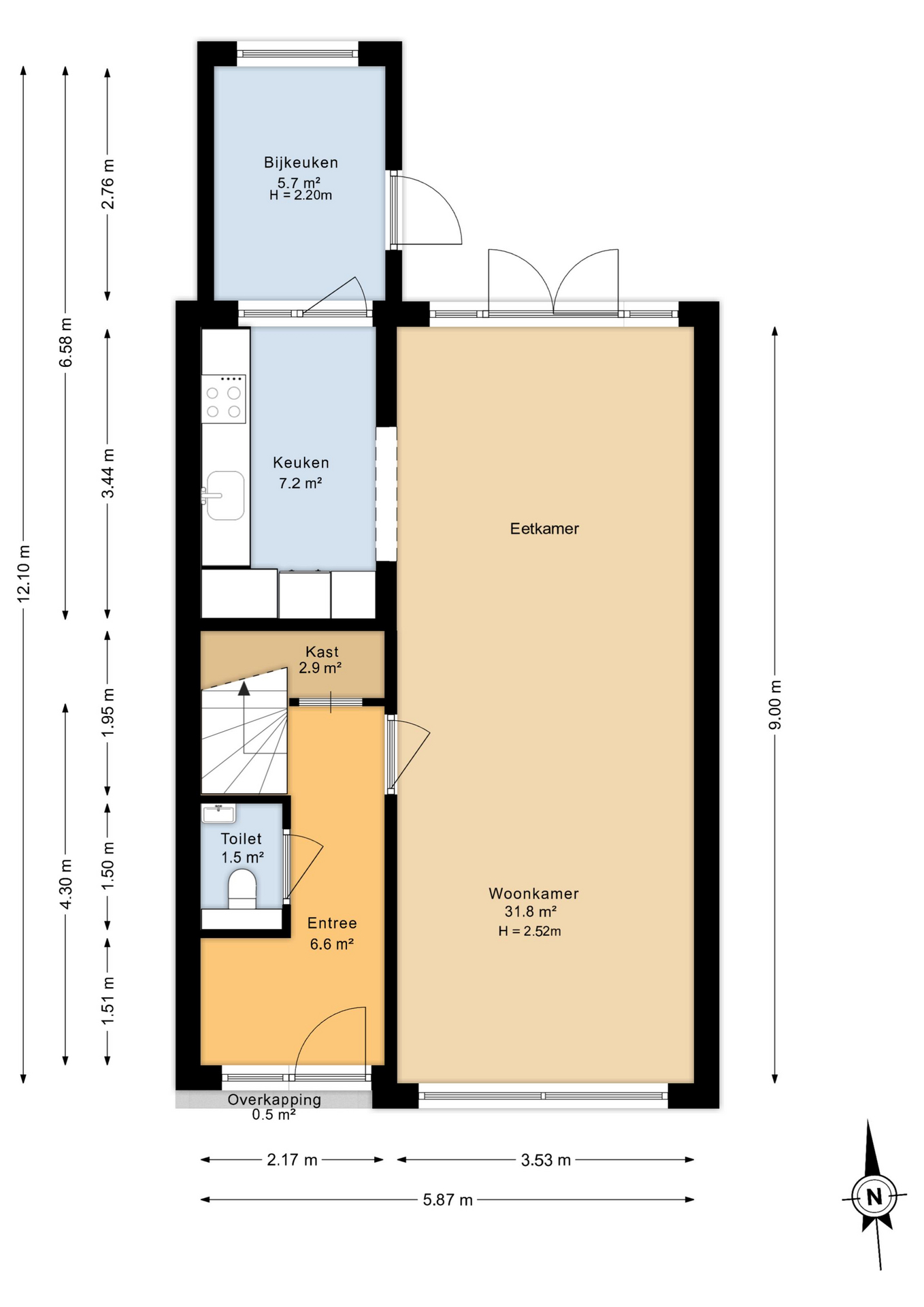
Begane grond:
Entree/hal met modern toilet, kastruimte en trapopgang. De lichte woonkamer is ruim van opzet (ca. 32 m²), voorzien van tuindeuren, stucplafond met inbouwspotjes en sfeervol afgewerkt. Aan de achterzijde vind je de open keuken in hoekopstelling (ca. 7 m²), die in 2019 is vernieuwd en uitgevoerd in een eigentijdse kleurstelling met diverse inbouwapparatuur. Dankzij de open verbinding met de eetkamer ontstaat een fijne leefruimte. Vanuit de keuken bereik je de in 2021 aangebouwde bijkeuken, ideaal voor witgoed, extra bergruimte en voorraad. De vloer van de woonkamer is extra comfortabel door de geïsoleerde kruipruimte.
1e Verdieping:
Overloop, drie goed
Uitstekend onderhouden tussenwoning met achterom, energielabel A en maar liefst 134 m² woonoppervlak.
Aan een rustige straat in een prettige woonomgeving staat deze verrassend ruime en uitstekend onderhouden tussenwoning met achterom, aangebouwde bijkeuken en vrijstaande berging. De woning is door de jaren heen met zorg gemoderni
Uitstekend onderhouden tussenwoning met achterom, energielabel A en maar liefst 134 m² woonoppervlak.
Aan een rustige straat in een prettige woonomgeving staat deze verrassend ruime en uitstekend onderhouden tussenwoning met achterom, aangebouwde bijkeuken en vrijstaande berging. De woning is door de jaren heen met zorg gemoderniseerd én verduurzaamd en beschikt over energielabel A.
Met een woonoppervlak van ca. 134 m² biedt deze woning volop ruimte voor het hele gezin.
Ook de voor- en achtertuin zijn netjes aangelegd. De achtertuin beschikt over een achterom en een vrijstaande berging van ca. 7 m². Een fijne, onderhoudsvriendelijke buitenruimte met voldoende privacy.
Kortom, een instapklare, uitgebouwde tussenwoning met vier slaapkamers, moderne voorzieningen en een uitstekende mate van duurzaamheid. Een ideale gezinswoning waar ruimte, comfort en energiezuinig wonen perfect samenkomen.
Begane grond:
Entree/hal met modern toilet, kastruimte en trapopgang. De lichte woonkamer is ruim van opzet (ca. 32 m²), voorzien van tuindeuren, stucplafond met inbouwspotjes en sfeervol afgewerkt. Aan de achterzijde vind je de open keuken in hoekopstelling (ca. 7 m²), die in 2019 is vernieuwd en uitgevoerd in een eigentijdse kleurstelling met diverse inbouwapparatuur. Dankzij de open verbinding met de eetkamer ontstaat een fijne leefruimte. Vanuit de keuken bereik je de in 2021 aangebouwde bijkeuken, ideaal voor witgoed, extra bergruimte en voorraad. De vloer van de woonkamer is extra comfortabel door de geïsoleerde kruipruimte.
1e Verdieping:
Overloop, drie goed bemeten slaapkamers, waarbij de ruime ouderslaapkamer toegang biedt tot de inloopkast. De moderne badkamer (vernieuwd in 2016) is uitgevoerd met inloopdouche, dubbele wastafel/wastafelmeubel en 2e toilet.
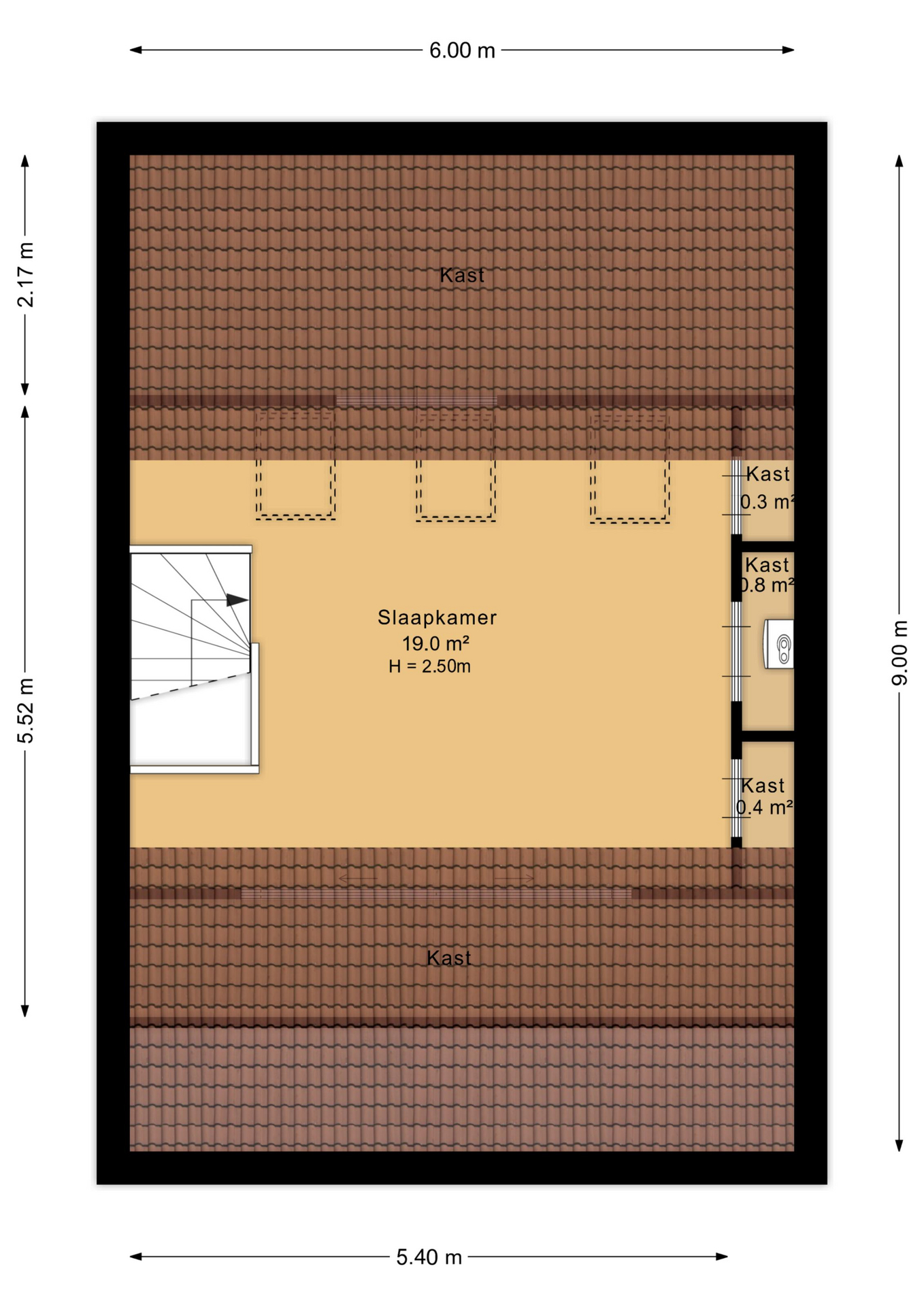
2e Verdieping: (gerealiseerd in 2002)
Via een vaste trap bereikbare royale 2e verdieping met een ruime vierde (slaap)kamer en praktische bergruimte achter de knieschotten. Een volwaardige extra woonlaag die multifunctioneel inzetbaar is, bijvoorbeeld als master bedroom, werkruimte of hobbykamer.
Overig:
* Energielabel A.
* 10 zonnepanelen (geplaatst in 2023).
* HR++ beglazing.
* Centrale verwarming door middel van een Intergas combiketel (2020).
* Geïsoleerde kruipruimte (vloer woonkamer).
* Deels kunststof en deels houten kozijnen (overwegend kunststof).
* 2e verdieping/kap gerealiseerd in 2002.
* Badkamer vernieuwd in 2016.
* Keuken vernieuwd in 2019.
* Bijkeuken aangebouwd in 2021 en voorzien van "vloerverwarming" (via retour van de CV).
* Bouwjaar: 1965.
* Perceelgrootte 155 m².
* Bijkeuken voorzien van sedumdak
Interesse?
Heb je interesse in deze woning of wil je een bezichtiging inplannen? Anne, Theo, Wendel en Jinke helpen je graag."*" geeft vereiste velden aan
Video
Plattegrond










