De Dassenboarch 15 – IJlst
Kenmerken
Status
Vraagprijs
Oplevering
Energielabel
Bouwjaar
Inhoud
Woonoppervlakte
Aantal slaapkamers
Perceeloppervlakte
Buitenruimte
Ligging tuin
Garage
Omschrijving
Ruime 2/1-kapwoning met garage, gelegen op een mooi perceel grond in een rustige straat dichtbij het centrum!
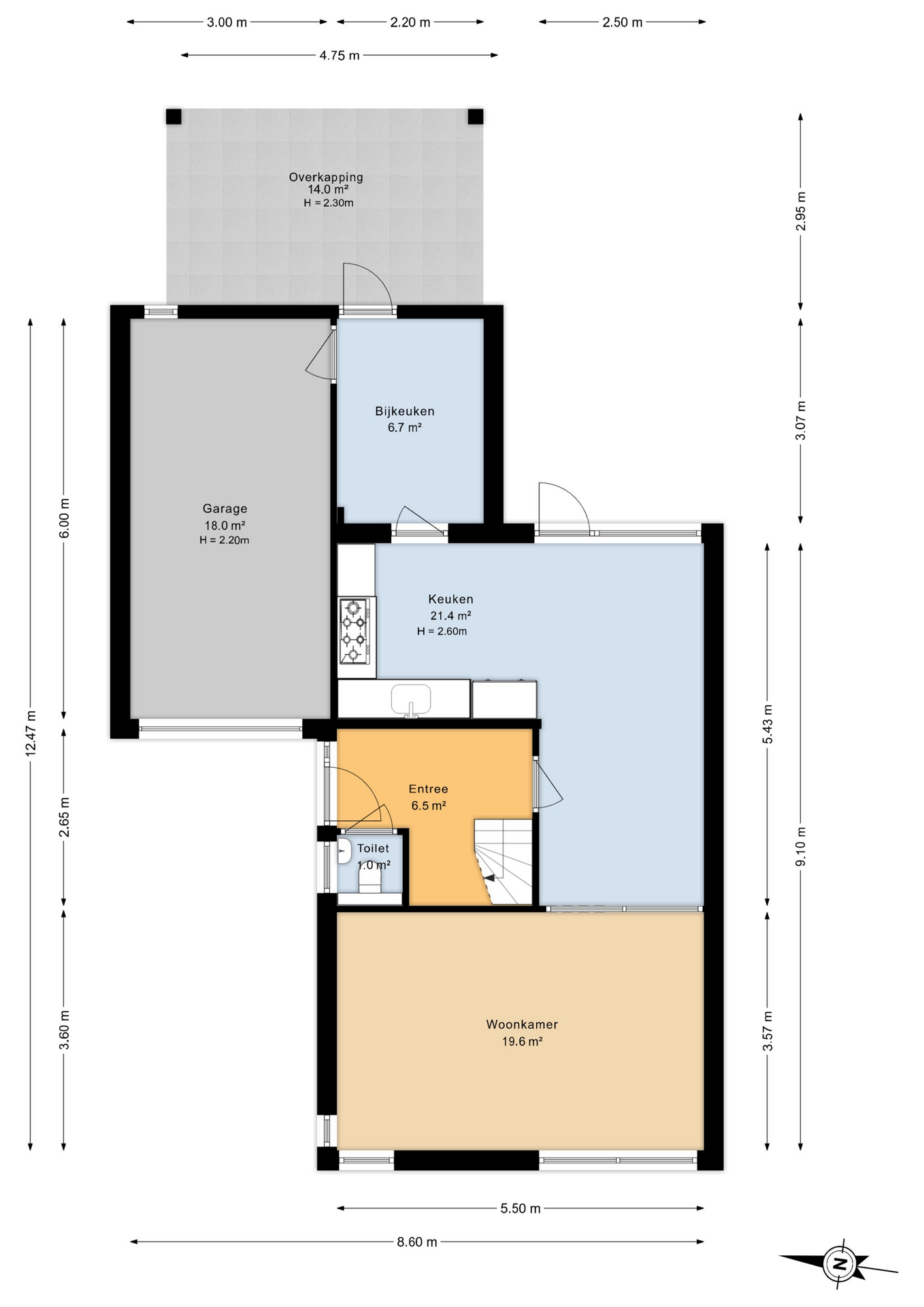
De woning kenmerkt zich door de hoog opgetrokken gevels en de ruime kap, wat zorgt voor opvallend veel leefruimte en een woonoppervlakte van ca. 138 m². De begane grond beschikt over een open keuken in nette staat met diverse inbouwapparaten en een ruime woonkamer welke aan de voorzijde van de woning is gelegen. Vanuit de keuken/eetkamer is er via de achterdeur direct toegang tot de tuin, wat zorgt voor een mooie open verbinding tussen binnen en buiten.
De tuin is gelegen op het oosten en biedt met een diepte van ca. 14 meter en een breedte van ca. 9 meter volop ruimte om te genieten van het buitenleven. De stenen garage is voorzien van een elektrische deur en op eigen terrein is er gelegenheid om meerdere auto's te parkeren.
Kortom: Een comfortabele en ruime gezinswoning op een fijne locatie!
Indeling:
Begane grond: entree/hal met trapopgang, toilet (hangcloset), meterkast en kruipluik. Vanuit de hal toegang tot de U-vormige eet-/woonkamer met hoekkeuken. De woonkamer is gelegen aan de voorzijde en biedt voldoende ruimte voor een comfortabele zithoek en een royale eettafel. De open keuken is gesitueerd aan de achterzijde van de woning in een praktische en nette hoekopstelling, voorzien van een 5-pits gasfornuis en divers inbouwapparatuur (o.a. vaatwasser, combimagnetron, koelkast, vriezer). Vanuit de woonkamer/keuken is er directe toegang tot de achtertuin. Aansluitend aan de keuken bevindt zich de bijkeuken met extra bergruimte en de wasmachineaansluiting. Vanuit de bijkeu
Ruime 2/1-kapwoning met garage, gelegen op een mooi perceel grond in een rustige straat dichtbij het centrum!
De woning kenmerkt zich door de hoog opgetrokken gevels en de ruime kap, wat zorgt voor opvallend veel leefruimte en een woonoppervlakte van ca. 138 m². De begane grond beschikt over een open keuken in nette staat met diverse inb
Ruime 2/1-kapwoning met garage, gelegen op een mooi perceel grond in een rustige straat dichtbij het centrum!
De woning kenmerkt zich door de hoog opgetrokken gevels en de ruime kap, wat zorgt voor opvallend veel leefruimte en een woonoppervlakte van ca. 138 m². De begane grond beschikt over een open keuken in nette staat met diverse inbouwapparaten en een ruime woonkamer welke aan de voorzijde van de woning is gelegen. Vanuit de keuken/eetkamer is er via de achterdeur direct toegang tot de tuin, wat zorgt voor een mooie open verbinding tussen binnen en buiten.
De tuin is gelegen op het oosten en biedt met een diepte van ca. 14 meter en een breedte van ca. 9 meter volop ruimte om te genieten van het buitenleven. De stenen garage is voorzien van een elektrische deur en op eigen terrein is er gelegenheid om meerdere auto's te parkeren.
Kortom: Een comfortabele en ruime gezinswoning op een fijne locatie!
Indeling:
Begane grond: entree/hal met trapopgang, toilet (hangcloset), meterkast en kruipluik. Vanuit de hal toegang tot de U-vormige eet-/woonkamer met hoekkeuken. De woonkamer is gelegen aan de voorzijde en biedt voldoende ruimte voor een comfortabele zithoek en een royale eettafel. De open keuken is gesitueerd aan de achterzijde van de woning in een praktische en nette hoekopstelling, voorzien van een 5-pits gasfornuis en divers inbouwapparatuur (o.a. vaatwasser, combimagnetron, koelkast, vriezer). Vanuit de woonkamer/keuken is er directe toegang tot de achtertuin. Aansluitend aan de keuken bevindt zich de bijkeuken met extra bergruimte en de wasmachineaansluiting. Vanuit de bijkeuken is er toegang tot de achtertuin en de garage.
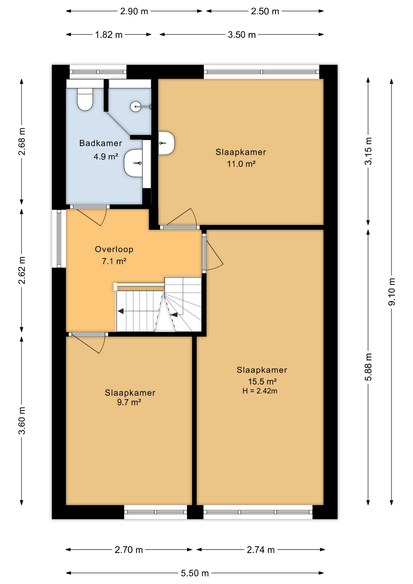
1e Verdieping: overloop met toegang tot 3 ruime slaapkamers en badkamer. De badkamer is netjes ingericht met een douche, toilet, wastafel en elektrische vloerverwarming.
2e Verdieping: bereikbaar via een vaste trap, een ruime overloop met veel bergruimte, aansluiting van de cv-installatie en een extra (slaap) kamer met vernieuwd dakraam.
Bijzonderheden:
* Perceelgrootte 286 m².
* Bouwjaar woning ca. 1978.
* Woonoppervlakte ca. 138 m².
* Inhoud ca. 555 m³.
* Garage voorzien van betonvloer en elektrisch bedienbare deur.
* Centrale verwarming via Nefit HR-combi ketel.
* Energielabel C.
* Parkeren op eigen terrein.
* Oplevering in overleg, op korte termijn mogelijk.
* Ruime woning op een erg mooie locatie!
Ligging:
De woning bevindt zich in een rustige en kindvriendelijke straat. Hier woon je op korte afstand van het gezellige centrum van IJlst met diverse voorzieningen. De supermarkt ligt op loopafstand, evenals één van de twee basisscholen en de sportvelden waarover IJlst beschikt. Ook voortgezet onderwijs en overige voorzieningen zijn eenvoudig bereikbaar in de naastgelegen stad Sneek.
IJlst beschikt bovendien over een eigen treinstation met verbindingen richting Stavoren en Sneek, vanwaar je gemakkelijk verder reist naar onder andere Leeuwarden. Met de auto ben je binnen enkele minuten op de uitvalswegen, waardoor de bereikbaarheid uitstekend is. Kortom: een fijne woonlocatie met alle dagelijkse voorzieningen binnen handbereik.
Interesse?
Heb je interesse in deze woning of wil je een bezichtiging inplannen? Anne, Theo, Wendel en Jinke helpen je graag."*" geeft vereiste velden aan
Video
Plattegrond










