Eenheid 25 – Sneek
Kenmerken
Status
Vraagprijs
Oplevering
Energielabel
Bouwjaar
Inhoud
Woonoppervlakte
Aantal slaapkamers
Perceeloppervlakte
Buitenruimte
Ligging tuin
Garage
Omschrijving
Karakteristiek herenhuis met extra aangebouwde tuinkamer en een diepe achtertuin, aantrekkelijk gelegen aan een opvaart van de Franekervaart, nabij het levendige centrum van Sneek.
Markant, karakteristiek gebouw, dankzij hoog opgetrokken gevels, traditioneel metselwerk, erkerpartij, glas-in-loodramen, breed dakoverstek en een keramische dakpan! Een woning met sfeer en karakter. In 2007 is de woonkamer aan de achterzijde uitgebouwd met een fijne eetkamer, ca. 12 m² groot, met dubbele tuindeuren. Deze ruimte beschikt over een extra hoog plafond met een groot Velux-dakraam, wat zorgt voor veel lichtinval. In 2018 is de gehele begane grond v.v. een betonvloer met vloerverwarming. Ook is toen een volledig nieuwe en uitgebreide keukenopstelling geplaatst, met granieten blad en Siemens inbouwapparatuur. Daarnaast is er nog een aansluiting voor een waterontharder aanwezig, is de riolering vernieuwd en is ook de meterkast nog volledig vernieuwd! De staat van onderhoud is dus echt prima, alleen de badkamer wacht nog op een opknapbeurt...
De woning is inmiddels ook prima geïsoleerd. De spouwmuren zijn na geïsoleerd, de gehele beganegrondvloer is geïsoleerd, alsmede ook het dakvlak. Daarnaast zijn bijna alle kozijnen vernieuwd in kunststof en v.v. hoogwaardig HR++ glas. De woning beschikt dan ook over een keurig energielabel A. De woning wordt verwarmd middels vloerverwarming en radiatoren en een moderne Nefit HR-cv-ketel (2018).
Kenmerkend voor deze woningen is de diepe achtertuin met een totale lengte ruim 14 meter. De tuin is bereikbaar via een achterom langs de spoorlijn. Een erg rustige locatie met vee
Karakteristiek herenhuis met extra aangebouwde tuinkamer en een diepe achtertuin, aantrekkelijk gelegen aan een opvaart van de Franekervaart, nabij het levendige centrum van Sneek.
Markant, karakteristiek gebouw, dankzij hoog opgetrokken gevels, traditioneel metselwerk, erkerpartij, glas-in-loodramen, breed dakoverstek en een keramische d
Karakteristiek herenhuis met extra aangebouwde tuinkamer en een diepe achtertuin, aantrekkelijk gelegen aan een opvaart van de Franekervaart, nabij het levendige centrum van Sneek.
Markant, karakteristiek gebouw, dankzij hoog opgetrokken gevels, traditioneel metselwerk, erkerpartij, glas-in-loodramen, breed dakoverstek en een keramische dakpan! Een woning met sfeer en karakter. In 2007 is de woonkamer aan de achterzijde uitgebouwd met een fijne eetkamer, ca. 12 m² groot, met dubbele tuindeuren. Deze ruimte beschikt over een extra hoog plafond met een groot Velux-dakraam, wat zorgt voor veel lichtinval. In 2018 is de gehele begane grond v.v. een betonvloer met vloerverwarming. Ook is toen een volledig nieuwe en uitgebreide keukenopstelling geplaatst, met granieten blad en Siemens inbouwapparatuur. Daarnaast is er nog een aansluiting voor een waterontharder aanwezig, is de riolering vernieuwd en is ook de meterkast nog volledig vernieuwd! De staat van onderhoud is dus echt prima, alleen de badkamer wacht nog op een opknapbeurt...
De woning is inmiddels ook prima geïsoleerd. De spouwmuren zijn na geïsoleerd, de gehele beganegrondvloer is geïsoleerd, alsmede ook het dakvlak. Daarnaast zijn bijna alle kozijnen vernieuwd in kunststof en v.v. hoogwaardig HR++ glas. De woning beschikt dan ook over een keurig energielabel A. De woning wordt verwarmd middels vloerverwarming en radiatoren en een moderne Nefit HR-cv-ketel (2018).
Kenmerkend voor deze woningen is de diepe achtertuin met een totale lengte ruim 14 meter. De tuin is bereikbaar via een achterom langs de spoorlijn. Een erg rustige locatie met veel privacy en zingende vogels. In de tuin is een flinke schuur gerealiseerd voor opslag en hobby.
Indeling:
Vestibule met origineel tegelwerk, hal met toilet (wandcloset), woonkamer met erkerpartij, hoekkast en natuurstenen vensterbanken, keukenruimte met flinke keukenopstelling, tuin-/eetkamer, bijkeuken/wasruimte.
1e verdieping:
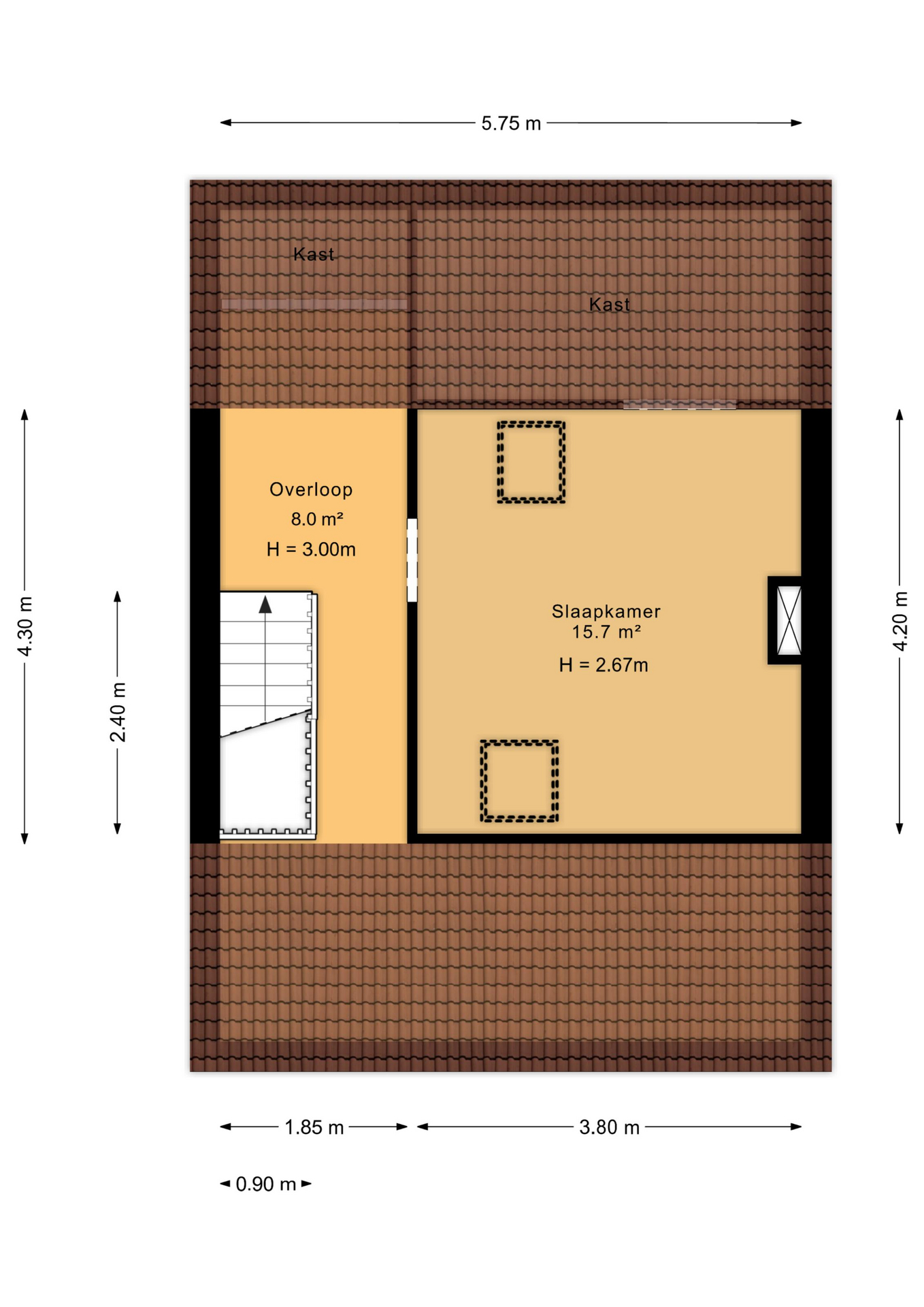
Overloop, 3 ruime slaapkamers met veel vaste kasten, badkamer met wastafel, 2e toilet en douche.
2e verdieping:
Via vaste trap bereikbaar, overloop/berging, 4e slaapkamer met 2 dakramen.
Bijzonderheden:
* Bouwjaar 1938.
* Inhoud ca. 478 m³.
* Woonoppervlak ca. 136 m².
* Perceelgrootte 160 m².
* HR cv-ketel 2018.
* Energielabel A.
* Geweldig mooie locatie!
Interesse?
Heb je interesse in deze woning of wil je een bezichtiging inplannen? Anne, Theo, Eveline, Wendel en Jinke helpen je graag."*" geeft vereiste velden aan
Video
Plattegrond















