Kamille 25 – Sneek
Kenmerken
Status
Vraagprijs
Oplevering
Energielabel
Bouwjaar
Inhoud
Woonoppervlakte
Aantal slaapkamers
Perceeloppervlakte
Buitenruimte
Ligging tuin
Garage
Omschrijving
In de rustige en kindvriendelijke woonwijk Duinterpen staat deze verzorgde hoekwoning uit 1988. Een fijne gezinswoning met een woonoppervlak van ca. 97 m², een aangebouwde berging aan de voorzijde en een perceel van 182 m². Aan de achterzijde geniet je van een vrij uitzicht over gemeentelijk groen.
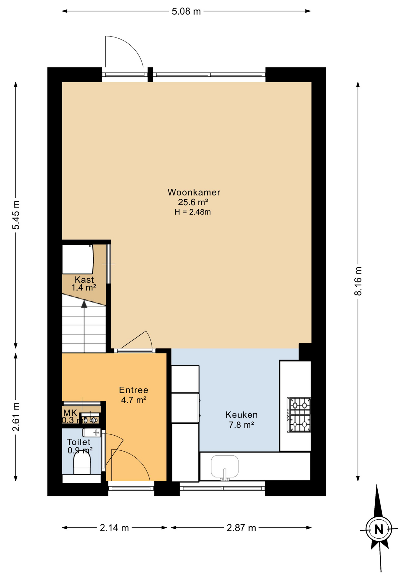
De woonkamer is licht en prettig ingedeeld. Met ca. 33 m² (woonkamer met open keuken) is er mooie leefruimte en via de tuindeur sta je direct in de achtertuin. De moderne open keuken is voorzien van inbouwapparatuur en vormt een mooi geheel met de woonkamer. Op de verdiepingen tref je in totaal vier slaapkamers aan. De badkamer is in 2024 compleet vernieuwd.
De woning is goed geïsoleerd en beschikt over energielabel A. In 2022 zijn er 8 zonnepanelen geplaatst. Parkeren kan op eigen terrein onder de carport. De aangebouwde berging van ca. 5,5 m² is ideaal voor fietsen en extra opslagruimte.
Kortom een comfortabele en energiezuinige basis. Op wellicht enig buitenschilderwerk na, is de woning volledig up-to-date en meteen te bewonen, zodat u direct kunt genieten van comfortabel woonplezier.
Een heerlijke (gezins-) woning gelegen op een mooie woon stand, aan de waterrijke zuidkant van Sneek in de aantrekkelijke wijk Duinterpen! Het levendige stadscentrum van Sneek bevindt zich op fietsafstand van de woning. De woonwijk zelf staat bekend als erg kindvriendelijk en heeft diverse eigen voorzieningen op loopafstand, zoals een kleinschalig winkelcentrum met onder andere een supermarkt en cafetaria en een brede basisschool.
Indeling:
Begane grond:
Hal /entree, toilet (hangcloset), tr
In de rustige en kindvriendelijke woonwijk Duinterpen staat deze verzorgde hoekwoning uit 1988. Een fijne gezinswoning met een woonoppervlak van ca. 97 m², een aangebouwde berging aan de voorzijde en een perceel van 182 m². Aan de achterzijde geniet je van een vrij uitzicht over gemeentelijk groen.
De woonkamer is licht en prettig inged
In de rustige en kindvriendelijke woonwijk Duinterpen staat deze verzorgde hoekwoning uit 1988. Een fijne gezinswoning met een woonoppervlak van ca. 97 m², een aangebouwde berging aan de voorzijde en een perceel van 182 m². Aan de achterzijde geniet je van een vrij uitzicht over gemeentelijk groen.
De woonkamer is licht en prettig ingedeeld. Met ca. 33 m² (woonkamer met open keuken) is er mooie leefruimte en via de tuindeur sta je direct in de achtertuin. De moderne open keuken is voorzien van inbouwapparatuur en vormt een mooi geheel met de woonkamer. Op de verdiepingen tref je in totaal vier slaapkamers aan. De badkamer is in 2024 compleet vernieuwd.
De woning is goed geïsoleerd en beschikt over energielabel A. In 2022 zijn er 8 zonnepanelen geplaatst. Parkeren kan op eigen terrein onder de carport. De aangebouwde berging van ca. 5,5 m² is ideaal voor fietsen en extra opslagruimte.
Kortom een comfortabele en energiezuinige basis. Op wellicht enig buitenschilderwerk na, is de woning volledig up-to-date en meteen te bewonen, zodat u direct kunt genieten van comfortabel woonplezier.
Een heerlijke (gezins-) woning gelegen op een mooie woon stand, aan de waterrijke zuidkant van Sneek in de aantrekkelijke wijk Duinterpen! Het levendige stadscentrum van Sneek bevindt zich op fietsafstand van de woning. De woonwijk zelf staat bekend als erg kindvriendelijk en heeft diverse eigen voorzieningen op loopafstand, zoals een kleinschalig winkelcentrum met onder andere een supermarkt en cafetaria en een brede basisschool.
Indeling:
Begane grond:
Hal /entree, toilet (hangcloset), trapopgang. Ruime, lichte tuingerichte woonkamer (ca. 26 m²) met laminaatvloer en tuindeur. Moderne open keuken (ca. 8 m²) met inbouwapparatuur en een aangebouwde berging met carport aan de voorzijde.
1e Verdieping:
Overloop. 3 slaapkamers waaronder een ruime (ouder)slaapkamer aan de voorzijde over de volledige breedte van de woning. Vernieuwde badkamer uit 2024 met inloopdouche, dubbele wastafel (meubel) en 2e toilet.
2e Verdieping:
Via vaste trap bereikbaar. Overloop met bergruimte, wasmachine & droger aansluiting/opstelling en een royale 4e slaap/werkkamer met dakraam.
Overig:
* Woonoppervlak ca. 97 m².
* Perceelgrootte 182 m².
* Energielabel A.
* Centrale verwarming middels Remeha combiketel (2020).
* Vrij uitzicht aan de achterzijde.
* Badkamer vernieuwd in 2024.
* Parkeren op eigen terrein.
* 8 Zonnepanelen.
* Achtertuin voorzien van overkapping.
* Het buitenschilderwerk zal binnenkort weer moeten worden uitgevoerd.
Interesse?
Heb je interesse in deze woning of wil je een bezichtiging inplannen? Anne, Theo, Eveline, Wendel en Jinke helpen je graag."*" geeft vereiste velden aan
Video
Plattegrond












