Koninginnenpage 29 – Sneek
Kenmerken
Status
Vraagprijs
Oplevering
Energielabel
Bouwjaar
Inhoud
Woonoppervlakte
Aantal slaapkamers
Perceeloppervlakte
Buitenruimte
Ligging tuin
Garage
Omschrijving
Comfortabele, vrijstaande woning, ingericht op volledig gelijkvloers wonen, gelegen op een prachtige locatie, aan de buitenrand van Sneek!
Deze woning is onder architectuur gebouwd door GBS Zweedse kwaliteit bouw te Drachten. Grotendeels uitgevoerd in hout met daarbij behorende extreem zware isolatie eisen, zoals triple beglazing. De woning is inmiddels dan ook voorzien van een energielabel A en beschikt over 9 zonnepanelen.
Met een ruim woonoppervlak van maar liefst 158m² biedt deze woning volop leefruimte en comfort. Alles is ingericht voor volledig gelijkvloers wonen, met drie ruime slaapkamers en twee badkamers op de begane grond. Ideaal voor wie toekomstgericht wil wonen. Op de eerste verdieping bevindt zich bovendien een sfeervolle werk-/tv-kamer met een grandioos uitzicht. Een heerlijke extra ruimte waar je in alle rust kunt ontspannen of werken.
Het huis staat op een fraaie, royale kavel van 701m², prachtig gelegen aan de rand van de moderne wijk Duinterpen. De tuin is afgeschermd van de openbare weg met een volwassen beukenhaag, wat zorgt voor veel privacy en rust.
Wat direct opvalt is het ruime houten terras, dat grenst aan de woonkamer. Deze zonnige buitenruimte is perfect gesitueerd op het zuiden. Verspreid door de tuin zijn meerdere zitplekken gecreëerd, zodat je op elk gewenst moment van de dag kunt genieten van het buiten zijn. Verder beschikt de tuin over een praktische (fietsen)berging met een sfeervolle overkapping.
De ligging is uniek: rustig en groen, met een landelijk uitzicht over de weilanden richting de Witte en Zwarte Brekken. Aan de overzijde van de stra
Comfortabele, vrijstaande woning, ingericht op volledig gelijkvloers wonen, gelegen op een prachtige locatie, aan de buitenrand van Sneek!
Deze woning is onder architectuur gebouwd door GBS Zweedse kwaliteit bouw te Drachten. Grotendeels uitgevoerd in hout met daarbij behorende extreem zware isolatie eisen, zoals triple beglazing. De woni
Comfortabele, vrijstaande woning, ingericht op volledig gelijkvloers wonen, gelegen op een prachtige locatie, aan de buitenrand van Sneek!
Deze woning is onder architectuur gebouwd door GBS Zweedse kwaliteit bouw te Drachten. Grotendeels uitgevoerd in hout met daarbij behorende extreem zware isolatie eisen, zoals triple beglazing. De woning is inmiddels dan ook voorzien van een energielabel A en beschikt over 9 zonnepanelen.
Met een ruim woonoppervlak van maar liefst 158m² biedt deze woning volop leefruimte en comfort. Alles is ingericht voor volledig gelijkvloers wonen, met drie ruime slaapkamers en twee badkamers op de begane grond. Ideaal voor wie toekomstgericht wil wonen. Op de eerste verdieping bevindt zich bovendien een sfeervolle werk-/tv-kamer met een grandioos uitzicht. Een heerlijke extra ruimte waar je in alle rust kunt ontspannen of werken.
Het huis staat op een fraaie, royale kavel van 701m², prachtig gelegen aan de rand van de moderne wijk Duinterpen. De tuin is afgeschermd van de openbare weg met een volwassen beukenhaag, wat zorgt voor veel privacy en rust.
Wat direct opvalt is het ruime houten terras, dat grenst aan de woonkamer. Deze zonnige buitenruimte is perfect gesitueerd op het zuiden. Verspreid door de tuin zijn meerdere zitplekken gecreëerd, zodat je op elk gewenst moment van de dag kunt genieten van het buiten zijn. Verder beschikt de tuin over een praktische (fietsen)berging met een sfeervolle overkapping.
De ligging is uniek: rustig en groen, met een landelijk uitzicht over de weilanden richting de Witte en Zwarte Brekken. Aan de overzijde van de straat bevindt zich open vaarwater, met de mogelijkheid tot het huren van een kleine ligplaats. Zwemmen, varen of vissen – het kan hier allemaal, direct voor de deur.
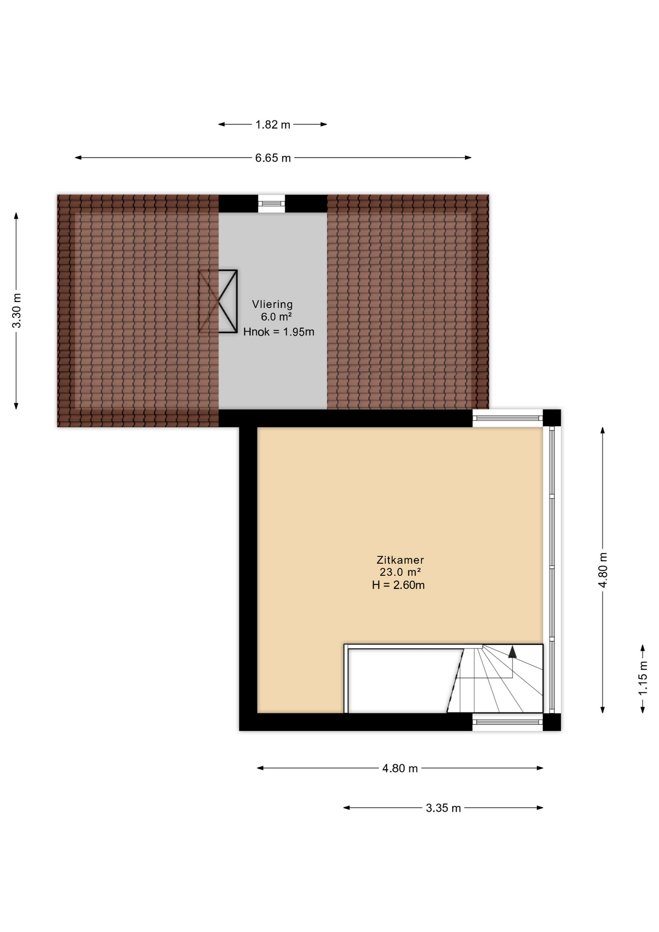
Indeling:
Hal/entree met garderobe nis, badkamer (3m²) v.v. toilet, douche en wastafel, slaapkamer I (ca. 12m²), bijkeuken
(8m²) v.v. wasmachineaansluiting, deur naar buiten en vlizotrap naar de vliering, living over de gehele breedte van de woning (ca. 52m²) v.v. massief grenen vloer, open haard, dubbele tuindeuren naar het terras en een open trap naar de 1e verdieping, open keuken (ca. 9m²) v.v. complete hoekopstelling met veel kastruimte en diverse inbouwapparatuur, hal naar berging (3m²) met CV opstelling, slaapkamer II (ca. 10m²) en slaapkamer III (ca.12 m²), 2e badkamer (8m²) v.v. jacuzzi, wastafel, douchehoek en wastafel.
1e verdieping:
werkkamer / leeshoek / zitkamer (ca. 23m²), bereikbaar direct vanuit de woonkamer met een open trap.
Daarnaast is de woning v.v. een bergzolder, bereikbaar middels een vlizotrap vanuit de bijkeuken.
Bijzonderheden:
* Onder architectuur gebouwd vrijstaande woning (levensloopbestendig);
* 3 slaapkamers en 2 badkamers op de begane grond;
* One of a kind;
* Woonoppervlakte van ca. 158m², inhoud 660m3 en 701m² eigen grond;
* Bouwjaar 2004;
* Meetrapport aanwezig en voor indeling en maatvoering zie plattegronden;
* Heteluchtverwarming;
* Energielabel A;
* Volledig en zwaar geïsoleerd;
* 9 zonnepanelen;
* Volledig voorzien van triple beglazing;
* Zonnige tuin gelegen op het zuiden/zuidoosten met terras en diverse zitplekken;
* (fietsen)berging v.v. elektra en overkapping, geplaatst in 2018;
* Centraal stofzuiger systeem;
* Waterontharder aanwezig en blijft achter;
* Keurig nette woning op prachtige plek;
* Parkeergelegenheid op eigen grond;
* Op een kleine 10 minuten fietsafstand van het gezellige centrum van Sneek;
* Sneek heeft een groot aanbod aan basis- en middelbare scholen, sportfaciliteiten, eetgelegenheden en winkels;
* Oplevering in overleg.
Interesse?
Heb je interesse in deze woning of wil je een bezichtiging inplannen? Anne, Theo, Eveline, Wendel en Jinke helpen je graag."*" geeft vereiste velden aan
Video
Plattegrond













