Skries 32 – Wommels
Kenmerken
Status
Vraagprijs
Oplevering
Energielabel
Bouwjaar
Inhoud
Woonoppervlakte
Aantal slaapkamers
Perceeloppervlakte
Buitenruimte
Ligging tuin
Garage
Omschrijving
Deze forse 2/1 kapwoning met garage (bouwjaar 2016) combineert moderne bouwkwaliteit met een warme en stijlvolle uitstraling. Met een woonoppervlak van maar liefst 180 m², 19 zonnepanelen, vloerverwarming op de begane grond en 1e verdieping, een ruime oprit, garage en een zonnige tuin op het zuidwesten, is dit een ideale en zeer complete (gezins)woning die comfort, veel leefruimte en duurzaamheid samenbrengt.
De woning is gebouwd met oog voor detail: een strakke bakstenen gevel met lichte accenten, een fraai schilddak met donkere dakpannen en een charmante erker aan de voorzijde die zorgt voor extra lichtinval in de woonkamer. Aan de zijkant bevindt zich de garage (met achterom), bereikbaar via de brede oprit die voldoende parkeergelegenheid op eigen terrein biedt. De woning is zeer onderhoudsvriendelijk dankzij het gebruik van duurzame materialen. Zo zijn de ramen, kozijnen en deuren uitgevoerd in kunststof. Ook de dakgoot en dakkapel zijn uitgevoerd in kunststof.
De fraai aangelegde achtertuin ligt gunstig op het zuidwesten, waardoor u tot in de avonduren van de zon kunt genieten. De ligging in een jonge, kindvriendelijke buurt met soortgelijke moderne woningen zorgt voor een prettige en rustige woonomgeving.
Deze woning biedt ruimte, licht en modern wooncomfort op een prachtige locatie.
Een ideaal (t)huis voor gezinnen die veel ruimte zoeken, maar ook willen genieten van sfeer en een fijne woonomgeving.
Indeling:
Begane grond: hal/entree, toilet (hangcloset), riante woonkamer met pvc-vloer. De prachtige zwarte stalen taatsdeuren met glas geven direct karakter en zorgen voor e
Deze forse 2/1 kapwoning met garage (bouwjaar 2016) combineert moderne bouwkwaliteit met een warme en stijlvolle uitstraling. Met een woonoppervlak van maar liefst 180 m², 19 zonnepanelen, vloerverwarming op de begane grond en 1e verdieping, een ruime oprit, garage en een zonnige tuin op het zuidwesten, is dit een ideale en zeer complete (gezin
Deze forse 2/1 kapwoning met garage (bouwjaar 2016) combineert moderne bouwkwaliteit met een warme en stijlvolle uitstraling. Met een woonoppervlak van maar liefst 180 m², 19 zonnepanelen, vloerverwarming op de begane grond en 1e verdieping, een ruime oprit, garage en een zonnige tuin op het zuidwesten, is dit een ideale en zeer complete (gezins)woning die comfort, veel leefruimte en duurzaamheid samenbrengt.
De woning is gebouwd met oog voor detail: een strakke bakstenen gevel met lichte accenten, een fraai schilddak met donkere dakpannen en een charmante erker aan de voorzijde die zorgt voor extra lichtinval in de woonkamer. Aan de zijkant bevindt zich de garage (met achterom), bereikbaar via de brede oprit die voldoende parkeergelegenheid op eigen terrein biedt. De woning is zeer onderhoudsvriendelijk dankzij het gebruik van duurzame materialen. Zo zijn de ramen, kozijnen en deuren uitgevoerd in kunststof. Ook de dakgoot en dakkapel zijn uitgevoerd in kunststof.
De fraai aangelegde achtertuin ligt gunstig op het zuidwesten, waardoor u tot in de avonduren van de zon kunt genieten. De ligging in een jonge, kindvriendelijke buurt met soortgelijke moderne woningen zorgt voor een prettige en rustige woonomgeving.
Deze woning biedt ruimte, licht en modern wooncomfort op een prachtige locatie.
Een ideaal (t)huis voor gezinnen die veel ruimte zoeken, maar ook willen genieten van sfeer en een fijne woonomgeving.
Indeling:
Begane grond: hal/entree, toilet (hangcloset), riante woonkamer met pvc-vloer. De prachtige zwarte stalen taatsdeuren met glas geven direct karakter en zorgen voor een open en ruimtelijk gevoel. Vanuit de erkerpartij in de woonkamer is er bovendien een fraaie doorkijk richting het natuurgebied Skrok. De moderne keuken is voorzien van schuifpui naar de tuin en diverse inbouwapparatuur (vaatwasser, inductie kookplaat, combi-oven, koel-/vries combinatie en quooker). Het betreft hier werkelijk een fantastische ruimte waarbij de woonkamer en keuken samen 65 m² groot zijn... De eveneens ruime bijkeuken is voorzien witgoedaansluitingen en biedt toegang tot de garage.
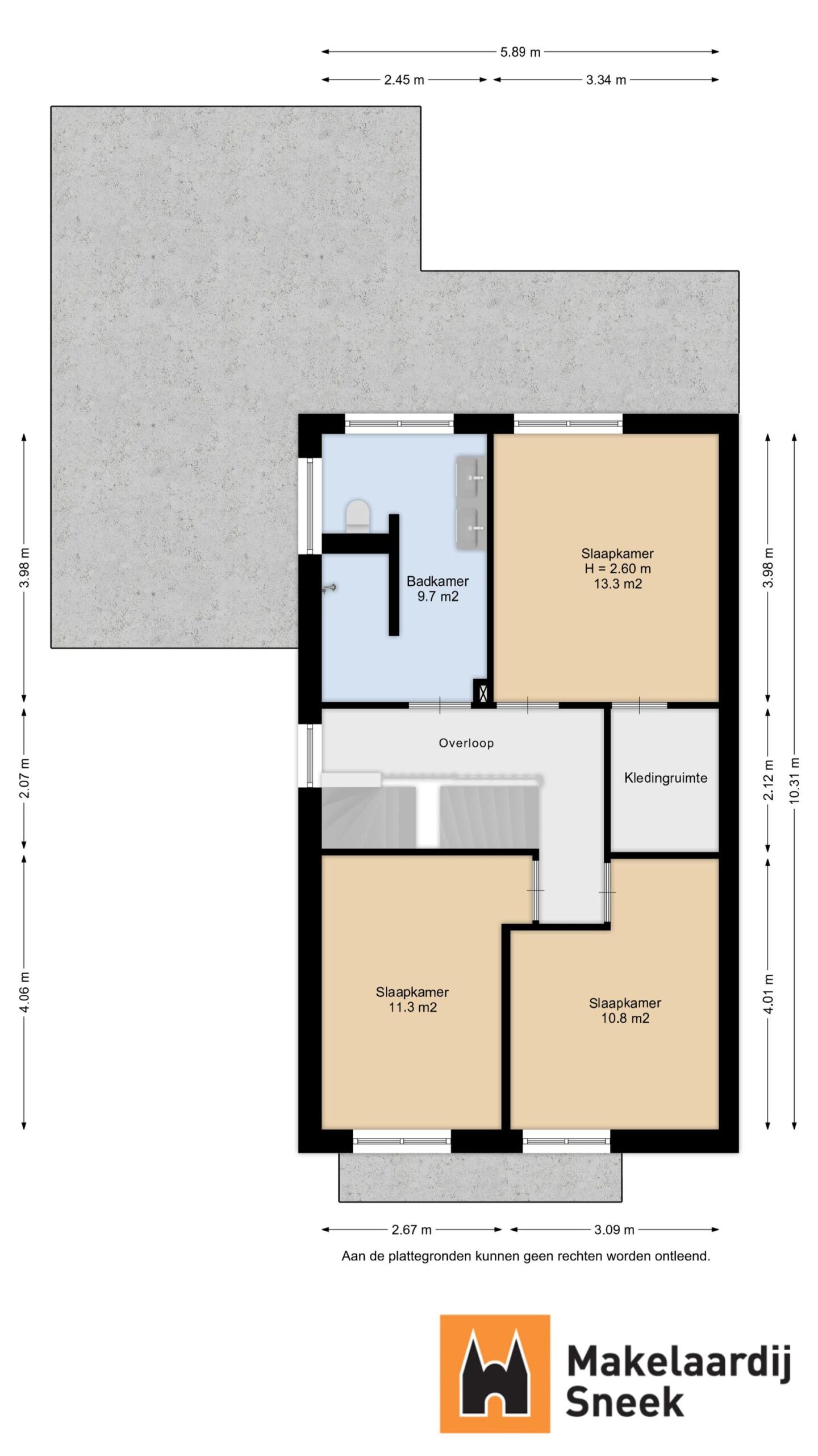
1e Verdieping: overloop, 3 ruime slaapkamers, waarbij de grootste slaapkamer toegang biedt tot de inloopkast. De badkamer is voorzien van inloopdouche, 2e toilet en dubbele wastafel (badmeubel).
2e Verdieping: via vaste trap bereikbaar, overloop, berging met CV-opstelling en een 4e (slaap)kamer van ruim 16 m² met grote dakkapel en voorzien van airco.
Overig:
* Woonoppervlak 180 m².
* Perceelgrootte 347 m².
* Energielabel A+.
* Bouwjaar 2016.
* Airconditioning (2022) aanwezig.
* Vloerverwarming aanwezig op de begane grond (m.u.v. garage) en 1e verdieping.
* 19 Zonnepanelen aanwezig (7 x 250 Wp & 12 x 435 Wp).
* Dakkapel geplaatst in 2022.
* Waterontharder aanwezig.
* Gehele woning voorzien van kunststof ramen/kozijnen met HR++ beglazing.
Wommels ligt in de Greidhoeke ten noordwesten van Sneek en ten noordoosten van Bolsward, tussen Easterein en Kubaard. De dorpskern ligt aan beide kanten van de Bolswardertrekvaart. Wommels biedt alles voor de dagelijkse behoefte met in het dorpscentrum een supermarkt, bakkerij, slagerij, diverse horecavoorzieningen en daarnaast nog sportschool, sportclubs en een openluchtzwembad.
Het dorp beschikt daarnaast over 2 basisscholen. Wommels telt ca. 2.385 inwoners. De gunstige ligging, aan de provinciale weg N359 en op 8 minuten rijden gelegen van de A7, biedt een uitstekende verbinding met de steden Leeuwarden - Bolsward - Franeker - Sneek en de Afsluitdijk welke met zowel de auto als met het openbaar vervoer goed te bereiken zijn.
Interesse?
Heb je interesse in deze woning of wil je een bezichtiging inplannen? Anne, Theo, Eveline, Wendel en Jinke helpen je graag."*" geeft vereiste velden aan
Video
Plattegrond













