Tsjebbe Claeszstrjitte 17 – Scharnegoutum
Kenmerken
Status
Vraagprijs
Oplevering
Energielabel
Bouwjaar
Inhoud
Woonoppervlakte
Aantal slaapkamers
Perceeloppervlakte
Buitenruimte
Ligging tuin
Garage
Omschrijving
Ruime 2/1-kapwoning, gelegen op prima woonstand, aan de rand van het dorp. Erg mooi uitzicht over de tegenovergelegen weilanden en de opvaart die in directe verbinding staat met het doorgaande vaarwater van De Zwette.
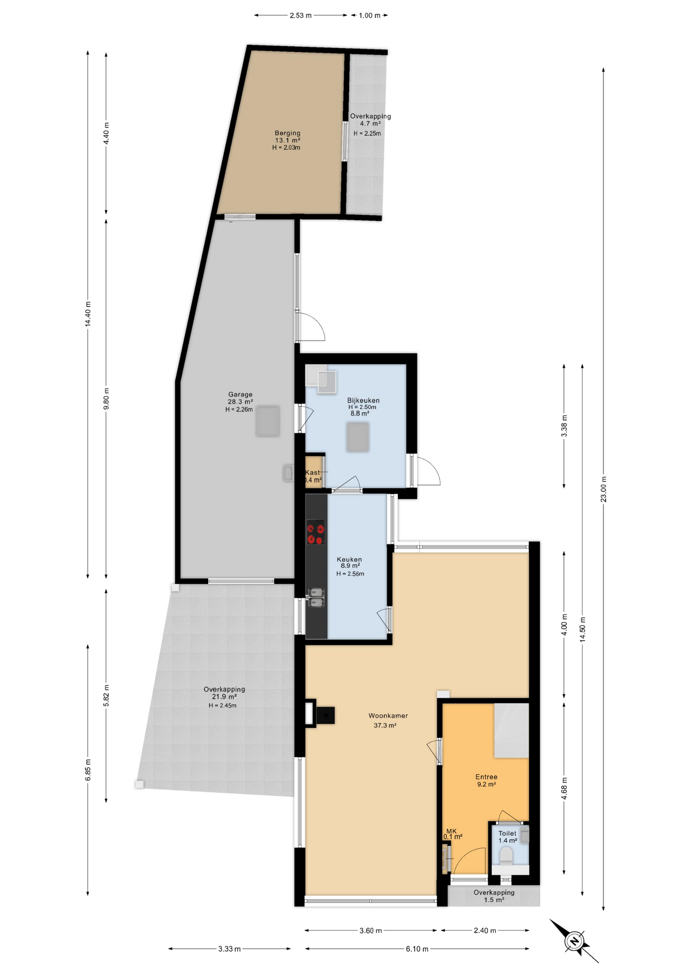
Kenmerkend voor deze woning zijn de royale aan- en bijgebouwen. Van oorsprong is de woning v.v. een garage (ca. 3 x 9,5 m.) + flinke bijkeuken en in 1996 is aan de voorzijde een forse carport toegevoegd. Tevens is de garage aan de achterzijde belangrijk uitgebouwd t.b.v. werkplaats/berging (ca. 13 m²). Een zeer geschikt geheel dus voor een klusser of kleine zelfstandige.
De woning is in de loop der jaren prima onderhouden. Zo is er recent een nieuwe keukenopstelling met diverse inbouwapparatuur geplaatst, is de badkamer gemoderniseerd en zijn de buitengevels gestraald en opnieuw gevoegd. Ook het buitenschilderwerk is in goede conditie en er zijn veel ramen v.v. elektrisch bedienbare rolluiken. Tevens is er veel aandacht aan isolatie geschonken, zo zijn er nu 12 zonnepanelen geplaatst, is de spouwmuur geïsoleerd en is de kruipruimte gevuld met isolatiekorrels. De woning beschikt nu over een energielabel B.
De totale perceelgrootte bedraagt 330 m², waarbij de achtertuin is gelegen op het noord/oosten. De achtertuin biedt veel privacy en is voornamelijk ingericht met sierbestrating. Het is mogelijk om een ligplaats te huren in de tegenovergelegen opvaart.
Indeling:
Hal/entree + modern toilet, ruime Z-vormige woonkamer (ca. 37 m²) v.v. plavuizenvloer en schouwpartij met houtkachel, dichte keuken (deels uitgebouwd) en v.v. moderne keukenopstelling met dubbele spoelbak, v
Ruime 2/1-kapwoning, gelegen op prima woonstand, aan de rand van het dorp. Erg mooi uitzicht over de tegenovergelegen weilanden en de opvaart die in directe verbinding staat met het doorgaande vaarwater van De Zwette.
Kenmerkend voor deze woning zijn de royale aan- en bijgebouwen. Van oorsprong is de woning v.v. een garage (ca. 3 x 9,5
Ruime 2/1-kapwoning, gelegen op prima woonstand, aan de rand van het dorp. Erg mooi uitzicht over de tegenovergelegen weilanden en de opvaart die in directe verbinding staat met het doorgaande vaarwater van De Zwette.
Kenmerkend voor deze woning zijn de royale aan- en bijgebouwen. Van oorsprong is de woning v.v. een garage (ca. 3 x 9,5 m.) + flinke bijkeuken en in 1996 is aan de voorzijde een forse carport toegevoegd. Tevens is de garage aan de achterzijde belangrijk uitgebouwd t.b.v. werkplaats/berging (ca. 13 m²). Een zeer geschikt geheel dus voor een klusser of kleine zelfstandige.
De woning is in de loop der jaren prima onderhouden. Zo is er recent een nieuwe keukenopstelling met diverse inbouwapparatuur geplaatst, is de badkamer gemoderniseerd en zijn de buitengevels gestraald en opnieuw gevoegd. Ook het buitenschilderwerk is in goede conditie en er zijn veel ramen v.v. elektrisch bedienbare rolluiken. Tevens is er veel aandacht aan isolatie geschonken, zo zijn er nu 12 zonnepanelen geplaatst, is de spouwmuur geïsoleerd en is de kruipruimte gevuld met isolatiekorrels. De woning beschikt nu over een energielabel B.
De totale perceelgrootte bedraagt 330 m², waarbij de achtertuin is gelegen op het noord/oosten. De achtertuin biedt veel privacy en is voornamelijk ingericht met sierbestrating. Het is mogelijk om een ligplaats te huren in de tegenovergelegen opvaart.
Indeling:
Hal/entree + modern toilet, ruime Z-vormige woonkamer (ca. 37 m²) v.v. plavuizenvloer en schouwpartij met houtkachel, dichte keuken (deels uitgebouwd) en v.v. moderne keukenopstelling met dubbele spoelbak, vaatwasser, oven en inductiekookplaat, flinke geïsoleerde bijkeuken + zolderberging.
1e verdieping:
overloop, 4 functionele slaapkamers, badkamer v.v. wastafel, douchecabine en 2e toilet.
2e verdieping:
via vaste trap bereikbaar, zolderberging/overloop, 5e slaapkamer.
Bijzonderheden:
* Bouwjaar 1971.
* Inhoud ca. 400 m³.
* Woonoppervlak ca. 145 m².
* Perceel grootte 330 m².
* Gehele woning v.v. dubbele beglazing.
* C.V. + Atag HR ketel 2021.
* Prima gezinswoning.
* Prachtige woonstand!
Interesse?
Heb je interesse in deze woning of wil je een bezichtiging inplannen? Anne, Theo, Eveline, Wendel en Jinke helpen je graag."*" geeft vereiste velden aan
Video
Plattegrond










