W. M. Oppedijkstraat 5 – IJlst
Kenmerken
Status
Vraagprijs
Oplevering
Energielabel
Bouwjaar
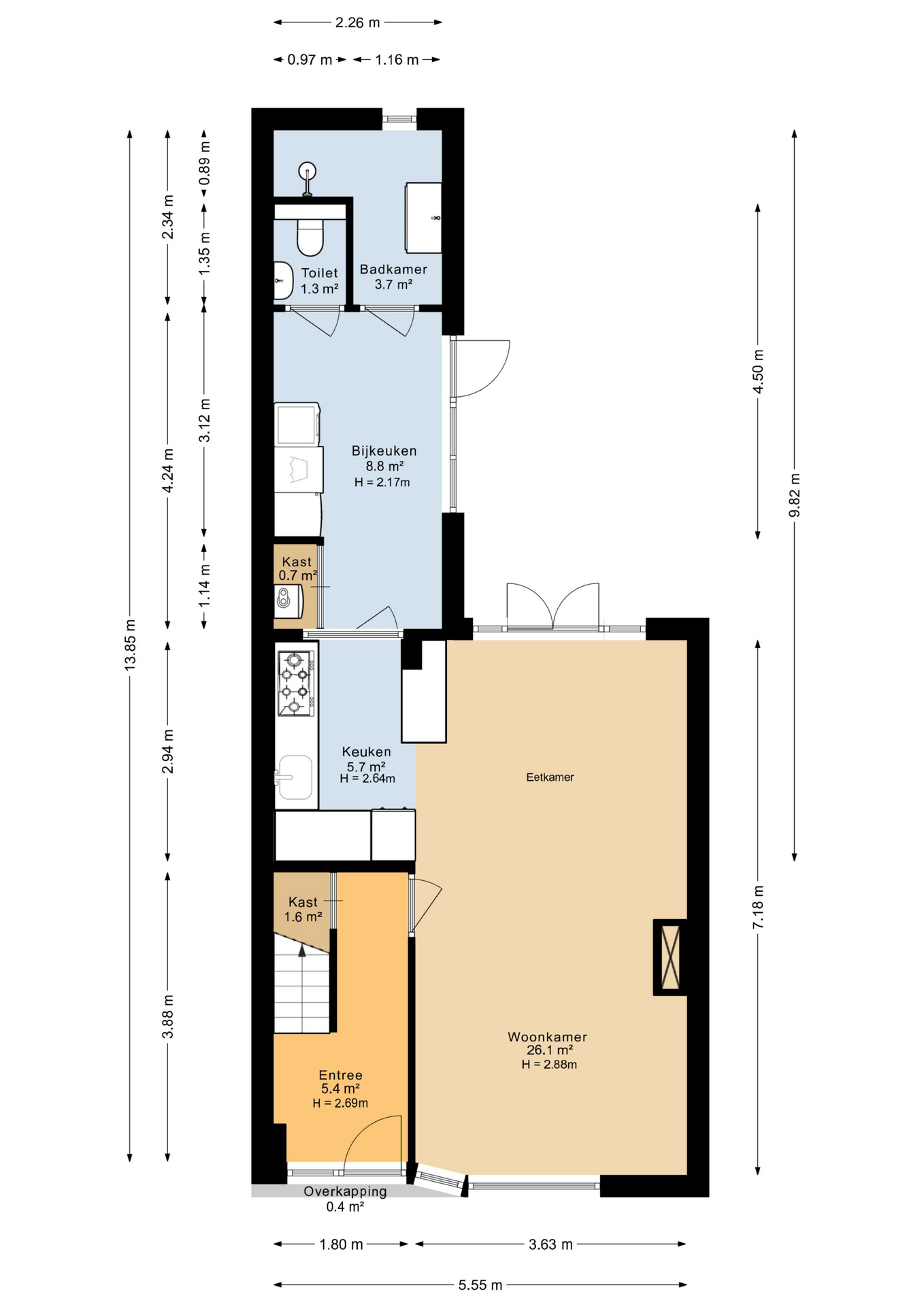
Inhoud
Woonoppervlakte
Aantal slaapkamers
Perceeloppervlakte
Buitenruimte
Ligging tuin
Garage
Omschrijving
Aan de geliefde en rustige W.M. Oppedijkstraat in het sfeervolle Elfstedenstadje IJlst staat deze karakteristieke, uitstekend onderhouden tussenwoning uit 1935. Een huis met een warme uitstraling, mooie details uit de bouwperiode en een moderne afwerking.
De woning maakt deel uit van een rij jaren ’30-woningen met kenmerkende details uit die tijd: een met zorg gemetselde gevel met metselwerk in halfsteensverband, overstekende dakranden en een rood pannendak.
De lichte woonkamer met balkenplafond en de moderne open keuken uit 2016 vormen een fijne leefruimte. Aan de achterzijde bevindt zich een praktische en ruime bijkeuken/berging (ca. 9 m²) met witgoedaansluitingen, een toilet en de badkamer. Een erg mooie combinatie van authentieke jaren ’30-charme en hedendaags wooncomfort.
De fraai aangelegde tuin is ca. 18 meter diep en is voorzien van een achterom. Achter in de tuin staat een ruime houten schuur met overkapping (2019), de perfecte plek om te ontspannen of te klussen. De tuin is sfeervol aangelegd met bestrating, groene borders en een beschut terras onder de overkapping.
Aantrekkelijke ligging, rustig en op loopafstand van het historische centrum van IJlst, winkels, scholen en het station.
Eigenlijk hoef je alleen nog maar te verhuizen...
Indeling:
Begane grond: hal/entree, trapopgang, ruime woonkamer met laminaatvloer, balkenplafond, gashaard, tuindeuren en moderne open keuken voorzien van inbouwapparatuur (de woonkamer en keuken zijn samen ca. 32 m² groot). Royale bijkeuken/berging, modern toilet (hangcloset) en nette badkamer met douche en wastafelmeubel.
Aan de geliefde en rustige W.M. Oppedijkstraat in het sfeervolle Elfstedenstadje IJlst staat deze karakteristieke, uitstekend onderhouden tussenwoning uit 1935. Een huis met een warme uitstraling, mooie details uit de bouwperiode en een moderne afwerking.
De woning maakt deel uit van een rij jaren ’30-woningen met kenmerkende details u
Aan de geliefde en rustige W.M. Oppedijkstraat in het sfeervolle Elfstedenstadje IJlst staat deze karakteristieke, uitstekend onderhouden tussenwoning uit 1935. Een huis met een warme uitstraling, mooie details uit de bouwperiode en een moderne afwerking.
De woning maakt deel uit van een rij jaren ’30-woningen met kenmerkende details uit die tijd: een met zorg gemetselde gevel met metselwerk in halfsteensverband, overstekende dakranden en een rood pannendak.
De lichte woonkamer met balkenplafond en de moderne open keuken uit 2016 vormen een fijne leefruimte. Aan de achterzijde bevindt zich een praktische en ruime bijkeuken/berging (ca. 9 m²) met witgoedaansluitingen, een toilet en de badkamer. Een erg mooie combinatie van authentieke jaren ’30-charme en hedendaags wooncomfort.
De fraai aangelegde tuin is ca. 18 meter diep en is voorzien van een achterom. Achter in de tuin staat een ruime houten schuur met overkapping (2019), de perfecte plek om te ontspannen of te klussen. De tuin is sfeervol aangelegd met bestrating, groene borders en een beschut terras onder de overkapping.
Aantrekkelijke ligging, rustig en op loopafstand van het historische centrum van IJlst, winkels, scholen en het station.
Eigenlijk hoef je alleen nog maar te verhuizen...
Indeling:
Begane grond: hal/entree, trapopgang, ruime woonkamer met laminaatvloer, balkenplafond, gashaard, tuindeuren en moderne open keuken voorzien van inbouwapparatuur (de woonkamer en keuken zijn samen ca. 32 m² groot). Royale bijkeuken/berging, modern toilet (hangcloset) en nette badkamer met douche en wastafelmeubel.
1e Verdieping: overloop, 3 slaapkamers (resp. ca. 6, 8 & 10 m²), alle drie met dakkapel (HR++ beglazing) In de ouderslaapkamer zijn inbouwkasten aanwezig.
2e Verdieping: via vlizotrap bereikbaar, bergzolder/vliering.
Overig:
* Woonoppervlak 86 m².
* Karakteristieke jaren ’30 bouwstijl met authentieke geveldetails.
* Perceelgrootte 162 m².
* Energielabel C.
* Achterom aanwezig.
* HR++ beglazing (2023).
* Bouwjaar 1935.
* Keuken (2016), vaatwasser (2023).
* Ruime schuur met overkapping (2019).
* Kruipruimte geïsoleerd (EPS-parels, 2023).
* Moderne groepenkast (2023).
* Centrale verwarming middels Intergas-combiketel (2023).
* Buitenschilderwerk 2024/2025.
* Dakbedekking bijkeuken vernieuwd in 2025 en voorzien van 8 cm PIR-isolatie.
IJlst, een mooie Elfstedenstad met goede voorzieningen, waaronder een treinstation, supermarkt en diverse restaurants. Daarnaast kent IJlst een actief verenigingsleven, met sportclubs en culturele activiteiten die het hele jaar door voor levendigheid zorgen. De stad ligt gunstig nabij Sneek en de uitvalswegen richting de Randstad. Bovendien bent u binnen enkele minuten fietsen in een oase van rust, omringd door Friese weilanden en pittoreske dorpjes.
Interesse?
Heb je interesse in deze woning of wil je een bezichtiging inplannen? Anne, Theo, Eveline, Wendel en Jinke helpen je graag."*" geeft vereiste velden aan
Video
Plattegrond











